Szczytniki, Koninko, Piotrowska - Dom Rynek Pierwotny
Dane podstawowe:
| Cena: | 599 000 PLN |
| Powierzchnia: | 71.75 m² |
| Liczba pokoi: | 4 |
| Liczba pięter: | 1-piętrowy |
| Rok budowy: | 2026 |
| Powierzchnia działki: | 120.00 m² |
| Długość działki: | 0.00 |
| Szerokość działki: | 0.00 |
| Termin realizacji: | 2026 |
| Data dodania: | 2026-02-03 |
| Numer Oferty: | SAN-OHP-11 |
Opis
GORĄCA OFERTA - SPRZEDAŻ TYLKO U MNIE - GOTOWY DOM!!!
Zakup od dewelopera | bez prowizji | bez podatku PCC
DUŻY dom skrajny w zabudowie czworaka Z OGRODEM - garaż / fotowoltaika / rekuperacja
Obsługa: SANDRA TURKIEWICZ 536 414 900
PRESTIŻOWE I FUNKCJONALNE OSIEDLE na podpoznańskim Sypniewie.
Zaletami inwestycji są ustawne pokoje, przestronne salony z aneksem kuchennym oraz funkcjonalny i bardzo dobrze przemyślany przez doświadczonych projektantów układ pomieszczeń, garaże, fotowoltaika oraz rekuperacja.
Nasz wyjątkowy dom z rynku pierwotnego składa się z:
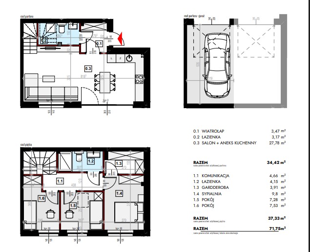
71,75 metrów kwadratowych powierzchni użytkowej w skład której wchodzą dwa poziomy (parter oraz piętro)
Parter razem 34,42 m2
Pokój dzienny z aneksem kuchennym (27,78 m2)
Łazienka (3,17 m2)
Wiatrołap (3,47 m2)
Piętro razem 37,33 m2
Sypialnia
Sypialnia
Sypialnia
Garderoba
Łazienka
Korytarz
Razem 71,75 m2
Do tego do lokalu przynależą garaż w bryle budynku: 16,91m2.
Ogródek ok 50 m2
Oraz strych (poddasze, wysokość pozwala swobodnie się po nim poruszać i przechowywać rzeczy).
Warto zwrócić uwagę przede wszystkim na:
* instalację fotowoltaiczną
* ogrzewanie podłogowe
* rekuperację z systemem rozprowadzania powietrza na parter i piętro
* trzyszybowe oszczędne okna
* garaż starowany bramą na pilota
* dodatkowe miejsce postojowe przed garażem
* poddasze do zaadoptowania
* wylewka anhydrytowa samopoziomująca -lepiej oddaje ciepło
* doprowadzony światłowód
Zapraszam na spotkanie - na miejscu inwestycji, super lokalizacja, fajny dobry dojazd do centrum Poznania.
Wysoki standard wykonania, dużo przestrzeni między budynkami, każde mieszkanie posiada ogród lub taras. Dodatkowo na osiedlu lokale usługowe, w tym sklep żabka, restauracja.
Załączam filmiki ze spaceru po mieszkaniach
https://youtu.be/3sIt0N9TMGY przykładowy
https://youtu.be/sPzoFMvi6ak
https://youtu.be/BuLOTEeuNeg
https://youtu.be/-sVQlvmh1kI
https://youtu.be/neEXJTrJP1k - akurat tu dwupokojowe na parterze
https://youtu.be/fs_lQrlCqPk - blok
https://youtu.be/yHsZad96Agw
https://youtu.be/zPh6Ci-XW3A
Inwestycja praktycznie gotowa do odbioru
Możliwość wykończenia pod klucz w dogodnej cenie
CENA: 599 000zł
Osiedle z całą pewnością będzie wyróżniać się na tle otaczającej zabudowy.
Mieszkania nowoczesne i - dzięki dużym przeszkleniom - znakomicie doświetlone.
W ofercie sprzedaży posiadamy wszystkie mieszkania w tej inwestycji.
Szukasz czegoś innego?
Dla nas to nie problem!
Posiadamy oferty z kilkudziesięciu inwestycji w Poznaniu i okolicach
Zapraszam do kontaktu
Sandra Turkiewicz
536 414 900
s.turkiewicz@platformamieszkaniowa.pl
Licencja zawodowa PFRN 30947
Dane szczegółowe:
| Dach: | dachówka |
| Dojazd: | asfaltowy |
| Elewacja: | tynk |
| Etap prac: | zakończona |
| Garaż: | jednostanowiskowy |
| Liczba łazienek: | 2 |
| Materiał: | silikat |
| Media: | woda, prąd, siła |
| Ogrodzenie: | metalowe |
| Ogrzewanie: | podłogowe |
| Okna: | plastikowe |
| Okolica: | zabudowa niska, autobus, plac zabaw |
| Poddasze: | nieużytkowe |
| Rezerwacja: | wolne |
| Technologia: | murowana |
| Termin realizacji kwartał: | kwartal_I |
| Typ budynku: | segment skrajny |
| Zalety: | Telefon, internet, TV_kablowa, ogrzewanie podłogowe, teren ogrodzony |